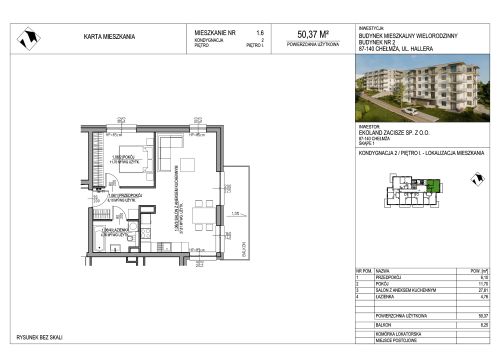
mieszkanie nr 1.6 o pow. 50,37m2 - I PIĘTRO

  • 1.6  50,37m2
  • cena 382 812,00 zł (7 600,00 zł/m2)
  • w cenie komórka lokatorska !
  • możliwość zakupu miejsca postojowego w cenie 26 000,00 zł netto
  • cena obowiązuje od 21.01.2026r. do 31.05.2026r.